Обяви За нас Контакти
Продава 3-СТАЕН
град София, Център
350 000 €
684 540.50 лв.

(3 271 €, 6 397.52 лв./m2)
Не се начислява ДДС
Коригирана в 11:04 на 17 октомври, 2025 год.
Обявата е посетена 8823 пъти.
Площ:
107 m2
Етаж:
6-ти от 6
ТEЦ:
ДА
Строителство:
Тухла, Въведен в експлоатация 1940 - 1949 г.

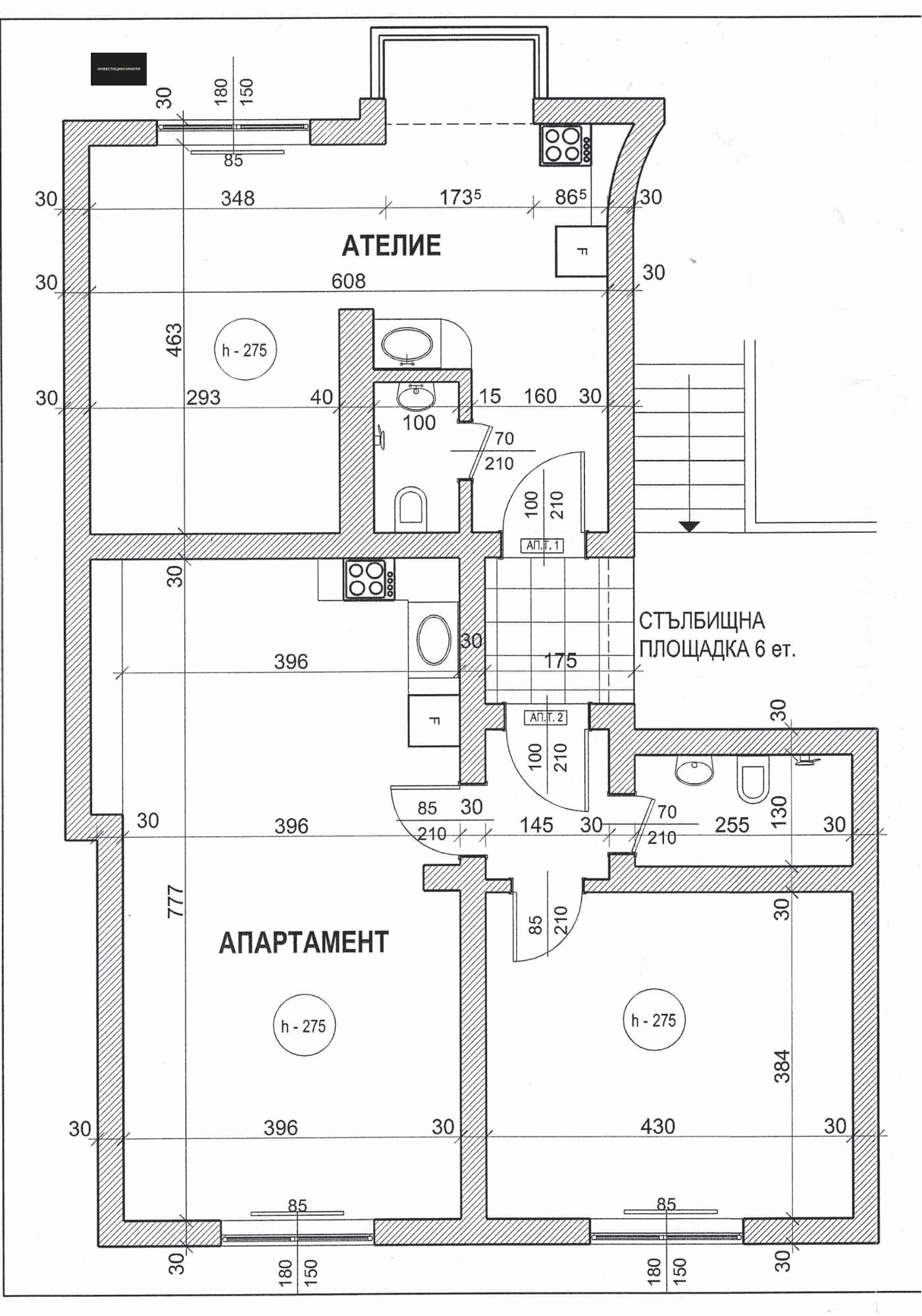
Описание на имота:


Продава тристаен на бул. Евлоги и Христо Георгиеви 3. Към апартамента има таван (8 кв.м.) и мазе (8 кв.м.). Посочената квадратура е чиста, без тавана, мазето и без общи части.

В момента физически е разделен на двустаен с баня и тоалетна и студио с баня и тоалетна, но не е разделян административно и е с един нотариален акт.

Високи тавани и просторни стаи. Две от стаите гледат към Витоша. В студиото също влиза слънце.

Работи като Airbnb и огледи е удобно да се правят между 11:00 и 16:00 в дните, когато няма гости.

Продава се със съществуващото обзавеждане. Без комисион от купувача. Работим и с колеги.
Особености
Тухла
С действащ бизнес
За контакт:
0888011511
Агенция:
ИНВЕСТИЦИИ В ИМОТИ
0888011511
ИНВЕСТИЦИИ В ИМОТИ logo
В imot.bg от 2024 г.
vimoti.imot.bg
Адрес:
област София, гр. София, София, пл. Йоан.Павел II
http://investiciivimoti.bg
ИЗПРАТИ ЗАПИТВАНЕ
ИЗПРАТИ ЗАПИТВАНЕТО

Продава 3-СТАЕН
град София, Център
Обява: 1c172975622470970

350 000 €
684 540.50 лв.
(3 271 €, 6 397.52 лв./m2)

Не се начислява ДДС
ЗАПАЗИ ОБЯВАТА

Местоположение: град София, Център

Допълнителни данни за имотите в района и сравнение с други райони

Покажи

Период

и 1 месец

* Средните цени са определени чрез медианна стойност